Renters
5 New Street, Kew, VIC, 3101
Property Summary
Property Details
A modern, stylish home of exceptional design, perfectly positioned in a quiet and exclusive Kew cul-de-sac. Beautifully presented and light-filled, this residence offers a seamless blend of luxury, functionality, and indoor-outdoor living, just moments from elite schools, boutique cafes, shops, parklands, and effortless freeway access.
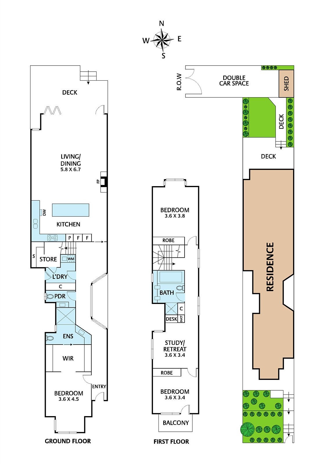
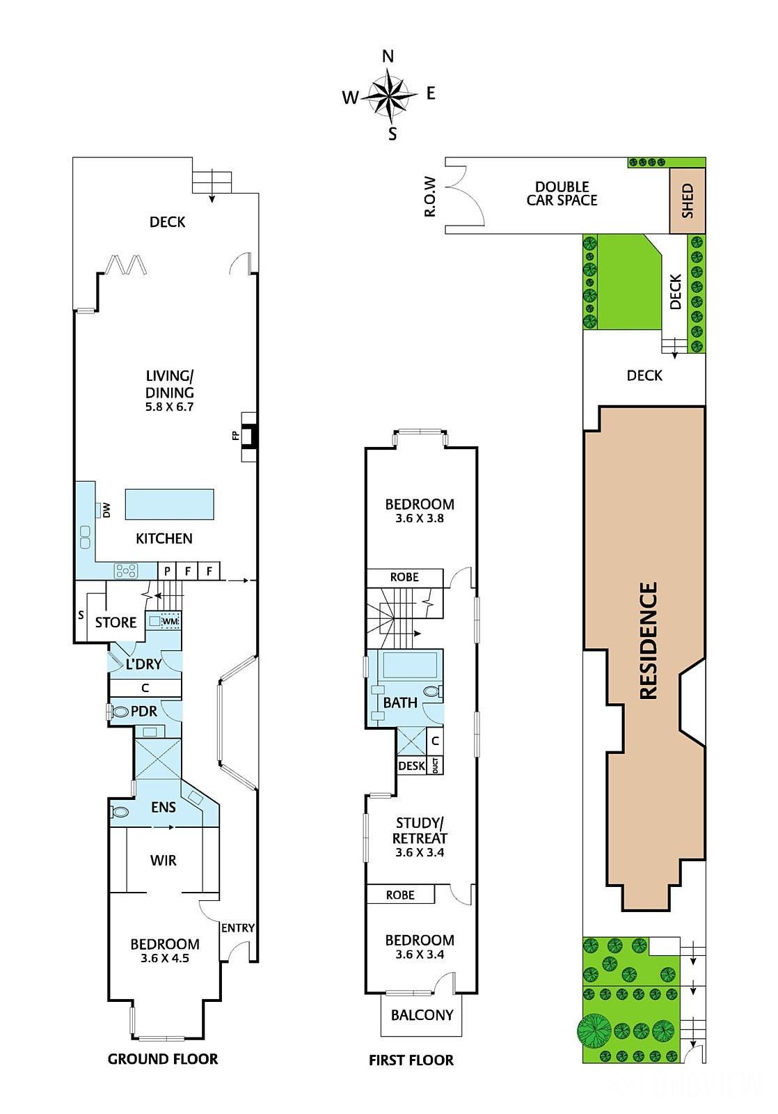
- Three spacious bedrooms, main with dual walk-in robes and sleek ensuite
- Light-filled living and dining area with pebble gas fireplace
- Stone kitchen with Ilve stainless-steel appliances and Bosch dishwasher
- Large entertainer’s deck with retractable awning
- family bathroom with frameless glass shower and separate bath, plus powder room
- upstairs lounge/study area with fitted desk
- Laundry and additional storeroom/cellar
- Zoned split-system heating/cooling
- North-facing low-maintenance garden
- Work shed and secure 2-car off-street parking (or 1 space for bigger car)
Please Note:
Government guidelines require all prospective tenants to register to attend open for inspections at properties. Inspection times and property availability are subject to change or cancellation without notice. If no inspection times are available, or the listed times are unsuitable, please select "Book an Inspection Time" or "Contact Agent" and register your interest. Once you have registered to attend an inspection you will be notified via SMS of any changes to the inspection.
Looking for someone to manage your investment property? Visit www.longview.com.au/landlords to learn about our unique services.






